案例分析:220万在Newtown 买有两个门牌号的排屋值不值?

Kevin Wang Kevin Education 2023-03-20 17:05 发表于澳大利亚

图片

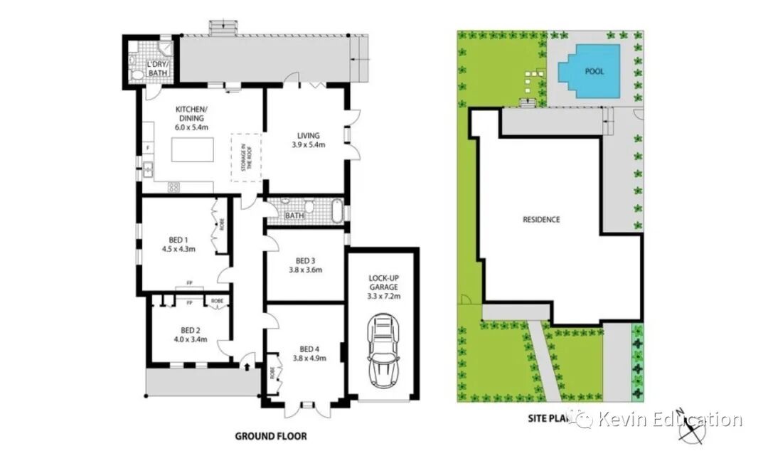
Susan在2022年下半年决定请我作为她的买房辅导老师,在City附近买排屋。

经过一段时间的徘徊和筛选,我们锁定了悉尼内西区Newtown, 12-14 S****  Street , 距离赫赫有名的king St 大约100.

图片

这个物业有两个门牌号码,12号和14号,12号的位置是建于1890年的两层排屋,楼上有三间卧房,在14号的位置是车库,车库楼上有两间房。

Susan在买前对一件事情没有把握,这也是非常重要的一件事。

车库的位置将来能不能拆掉并建一个新的排屋?

我们调研后得到以下信息,觉得可行性很大,原因是

A 12-14号本身有两个门牌号码,前庭宽度10.31

邻居10号也是一个两层排屋,土地面积是100平米出头,我们12-14号超过200平米有机会分割成两块地,土地面积和10号邻居的土地面积近似

邻居16-18号和我们12-14号的情况近似,已经批准建两个。

面对Susan的疑惑,我告诉Susan的原话是,

我没有办法告诉您车库位置一定能盖新的排屋,但机会很大。

图片

还有一件事情苦恼着她,那就是翻新费用。

这个老房子需要修的东西特别多,有三个地方墙皮脱落,有两个窗户需要换,厨房浴室也需要一定的修理翻新。

Susuan 将我的《旧房翻新课》看了多遍,告诉我说:

“你上面所谈到翻新所面临的问题,我这次基本都会面对!”

想做旧房翻新?补课的机会来了,让你翻新不踩坑。赠送课程目录

图片

该物业基本信息

土地价值169

成交价220

宽度10.31/8.79米, 深度21.39/22.63

租金 1800澳币每周

小学 Newtown North

中学 Newtown High school of performing arts

拍卖结束后,Susan忐忑不安,说220万是不是买贵了,我问了她一个问题。

你去找一找,在离市区4公里范围内,找到带两个门牌号,价格在220万以内的,看能不能找到?

她释然了!

图片

在我和她讨论过程中,Susan 还问到了以下问题,

这个位置容易分租给悉尼大学的留学生吗?

如何解决墙壁潮湿的问题?

有做DA的人推荐给我吗?

门窗需要用以前一样的颜色吗?(古迹保护区)

大门可以换吗?((古迹保护区)

原创长文:排屋,文物保护区的房子和文物建筑能买吗?

楼梯处太暗怎么办?

写完Susan的买房经历,突然想起我的老师说过的一句话

想买到有潜力的物业,一定要有别人没有的眼光,或者做一点别人不愿意做,或者别人做不了的事情。

觉得这句话很有道理,特地分享给正在读这篇文章的您。

凯文地产学院收费标准,支付方式,报名须知 和 免责声明

图片

2022年悉尼原创地产文章138篇汇总

图片

Kevin 老师介绍,凯文地产学院校长https://kevinproperty.au 地产投资人,太平绅士,NSW持牌买家代理,微信:kevinwang117119 手机0401-481-701 从2003年开始研究澳洲地产,在找deal 和旧房翻新方面积累了丰富的经验,主讲《如何找deal》,《旧房翻新盈利秘笈》等课程。

本文仅代表作者观点,投资有风险,请大家谨慎投资

回答提问:3月18日的拍卖,St Ives 这套为什么超过指导价107万澳元售出?

Kevin Education 2023-03-20 17:05 发表于澳大利亚

图片

提问

指导价260万澳元,价格飙到了367万澳元,超出指导价107万澳元,请问这是为什么?


house的具体情况

19 Mungarra Avenue, St Ives NSW 2075

(四室两浴一车位,土地面积1012平方米)

宽度20.12米,深度50.3米,土地价值214万澳元,

2023年3月18日 367万澳元拍场售出

St Ives的介绍链接如下

St Ives,悉尼上北自住占比82.9%。中价位近300万

图片

首先看中介广告:

这是一栋全砖住宅,配有现代化厨房,有挑高天花板和空调,带洗碗机的现代石质台面厨房。

宽敞的主人静修所,享受内置墙。宽敞卧室,其中一间通向前阳台。带浴缸的现代主浴室,盥洗室。

图片

外部特征:

私密且安静,位于临街高处
围栏靠近平整的朝北草坪
带第二间浴室的洗衣房
带锁的大车库
宽敞的地下储物区
Corner位置

位置优势:

350 米到 194、194X、195 和 195/6 路公交车服务,前往St Ives village, Gordon Station, Belrose and CBD
距购物中心 1.1 公里
距 St Ives North 公立学校 1.5 公里

靠近圣艾夫斯高中

图片

拍场情况:

23人注册,成交价高于Reserve Price 60多万澳元。

缺点:

房屋状况不够好

 

图片

为什么价格这么高?

Kevin老师分析的原因如下,欢迎知情者补充

A 请看看卖房子的中介是谁?不妨查查她的销售记录。

过去12个月销售31套,其中23套在St Ives, 所售house中价位360万澳元。

B St Ives已经是上北的一个投资热点,溢价多也在情理之中。

C 距离该house不到100米,45 Bimburra av 去年6月24日售价386万澳元,土地面积801平,土地价值214万澳元, 386万澳元比367万澳元还贵19万澳元。所以,该house(19号)并没有高过周边成交。(45号的状况比19号要好)

D 位于St Ives North 学区是一大卖点,特别是有的买家特别在乎学区。

E 这块地位于corner位置,平整并位于静街。

图片

凯文地产学院收费标准,支付方式,报名须知 和 免责声明

图片

2022年悉尼原创地产文章138篇汇总

图片

Kevin 老师介绍,凯文地产学院校长https://kevinproperty.au 地产投资人,太平绅士,NSW持牌买家代理,微信:kevinwang117119 手机0401-481-701 从2003年开始研究澳洲地产,在找deal 和旧房翻新方面积累了丰富的经验,主讲《如何找deal》,《旧房翻新盈利秘笈》等课程。

本文仅代表作者观点,投资有风险,请大家谨慎投资

悉尼现在还有正现金流的house吗? 答案是有! 举例说明

Kevin Wang Kevin Education 2023-03-06 18:27 发表于澳大利亚

图片

如果你问,悉尼现在还有正现金流的house吗?

绝大部分人的答案是,没有!

普通投资者能想到的获得正现金流的方案是

在悉尼买公寓

去外地, 包括外州和NSW的小城市买house

今天我想谈一个真实的案例,房子在2月中旬交割,您看是不是正现金流的house?

20221210日买家Erica顺利地签完买房合同,2023216house 顺利交割,具体数据如下

图片

House所在地 Sutherland Council

买价  115

租金  主屋850澳币 +  奶奶房400澳币

租金合计1250 澳币每周

土地面积620

土地价值82

有风景

115万买,1250澳币每周租金,是不是正现金流?

看完以上数据,读者或许还会有以下疑问

图片

房子很破吗?

不破,买完后只花了几千澳币粉刷翻新了一下

是板房吗?

主屋是砖房,奶奶房是板的

该区过去十年的平均增长率?

9.49%,如果每年10%的增长率。就意味着七年翻一番。

图片

是怎么找到的?

下文链接谈到了找房过程,并不顺利!

分享:162万的预算如何在悉尼买house?

不同买家财务状况不同,购买需求不同,如果您已经有一定的资金储备,想买房,但不知道该怎么走,可以找我聊聊。

澳洲房市,包括悉尼房市是一个很复杂的市场,并不是铁板一块,所以,不要用一刀切的眼光看待整个市场。

同时,如果您觉得一件事很难,其实很可能并不是真的难,有可能是方法不对,或者思路不对。打开思路,提升认知,就会打开一扇窗。

比如在悉尼找正现金流house的问题,Erica不是圆满地解决了吗?

本文图片全部是Erick所购house的真实图片,有家具的是house出售时的图片,无家具的是招租时的图片。

如果你有一些投资思路,但苦于找到不到答案,欢迎和我联系。

图片

图片

图片

凯文地产学院收费标准,支付方式,报名须知 和 免责声明

图片

2022年悉尼原创地产文章138篇汇总

图片

Kevin 老师介绍,凯文地产学院校长https://kevinproperty.au 地产投资人,太平绅士,NSW持牌买家代理,微信:kevinwang117119 手机0401-481-701 从2003年开始研究澳洲地产,在找deal 和旧房翻新方面积累了丰富的经验,主讲《如何找deal》,《旧房翻新盈利秘笈》等课程。

本文仅代表作者观点,投资有风险,请大家谨慎

呼吁地主们积极行动起来,反对土地价格暴涨【转发smh主流媒体文章】

Melissa Heagney Kevin Education 2023-03-06 18:27 发表于澳大利亚

图片

编者按:今天转发主流媒体www.smh.com.au上的一篇文章,内容是地主们都很关心的土地价格暴涨问题,笔者呼吁各位地主积极参与抗辩,如在申请抗辩过程中碰到困难,笔者愿意提供免费协助。

笔者去年参加了抗辩,今年也参加了抗辩,不同的是,去年在抗辩递交后一周内就有评估师联系我,并在三天内得到回复。

今年的抗辩是2月21日递交的,直到今天3月6日还没有评估师联系我,我的推测是面对大量的抗辩人群,他们人手不够了。

请积极参加抗辩,捍卫自己的钱包!如果你觉得自己的土地价值评估不合理,想找人讨论一下,可以私信给我。

以下链接是笔者写于今年 1月17日的土地税账单原创长文,已被广泛转发和关注!

原创长文| 2023土地税巨额账单来袭,怎么办?

图片

以下是smh的英文翻译文章,文末有英文原文链接。

作者:Melissa Heagney-Bayliss

今年,房地产投资者、度假屋和土地所有者以及商业企业的土地估值都将飙升。

估值是从去年 7  1 日开始的,此后房地产价值大幅下跌。

房主担心,尽管房价正在下跌,但市政费和土地税账单将被推得更高。

超过 1500 名新南威尔士州的房主对几个月前进行的房地产估价提出异议,这些估价没有考虑到最近的价格下跌,并且可能会抬高土地税和市政费率。

一些业主认为,从去年 7  1 日开始的估值过高,因为一些社区的房屋价值暴跌了 20%

基于数月前的估值,投资者面临巨额土地税。

图片

投资者缴纳的土地税基于新南威尔士州估价师的估值。自住业主不用为自己的房子缴纳土地税,但要缴纳地方议会的税费,尽管首次购房者可以选择缴纳年度财产税而不是印花税。

估值师大卫·帕克 (David Parker) 此前曾建议业主在规定的 60 天之内质疑估值之前收集有关当地销售的数据。

新南威尔士州州长 Dominic Perrottet 本周提议改变土地的估价方式。目前,估值只考虑土地,而不考虑上面的房子。相反,总理提议将房子也包括在内。

CoreLogic 数据显示,从去年月到今年 1 月,悉尼的房价中值下降了 12.3%  120 万澳币。同期单位价值下跌 7.8%,中位价约为 769,000 美元。

一些新南威尔士州的房主认为,几个月前进行的房产估值过高,因为某些地区的房价下跌了20%

一些最大的价值跌幅出现在北部海滩,例如 Manly 统计区下跌 20.6%Pittwater 地区下跌 17%

Valuation NSW 的一位发言人表示,到目前为止已收到 1564 份反对意见,相当于悉尼 270 万套房屋的约 0.1%。由于通知将在 4 月之前发送,因此预计会有更多反对意见。

这位发言人说,大多数反对意见都与土地价值上涨有关。

图片

房地产投资者、度假屋所有者或土地所有者以及商业企业都会受到估值的影响。首次购房者可以选择在购买房屋时支付年度财产税,而不是预付印花税。

Corelogic 数据显示,自去年月以来,房价下跌了两位数。

反对的数量每年都不同,发言人说。 “如果土地所有者认为他们的估价通知书上的土地价值是错误的,他们有 60 天的时间向新南威尔士州估价局提出异议,要求对其进行免费独立审查,因此可能会有更多[异议]

他说,下一次估值将于今年 7  1 日进行。

新南威尔士州房地产协会首席执行官 Tim McKibbin 与担心估值上涨的房主进行了交谈。

根据地区的不同,有些人对此非常关注,他说。 “我想人们会提出异议,但他们是否成功完全是另一回事。

他说,整个悉尼的估值都是作为整体估值进行的,而不是针对个别房产。他们确实考虑了该地区房产的销售价格。

图片

估值只看土地,土地的最高和最佳用途是什么,他们将价值应用于此,”McKibbin 说。 “你可以看到其中有一部分是艺术,一部分是科学,这不是一个你可以确定地产生的公式。

McKibbin 表示,随着土地税成本的上涨,投资者已经开始抛售,一些人正在寻求在其他地方投资。

已经做出的估值肯定会比以前高,因此,如果议会和政府考虑到土地价值的增加,他们也会支付更多的地税,他说.

投资者抛售将给悉尼本已紧张的租赁市场增加压力,悉尼 1 月份的空置率仅为 1%

这将对包括租户在内的很多人产生连锁反应,他说。

Property Council NSW 的代理执行董事 Adina Cirson 也提出了担忧。

在企业已经承受压力的时候,成员们担心大幅飙升。涨价可能会转嫁给租户,这可能导致租金进一步上涨,她说。

除了通货膨胀和建筑成本之外,这是该行业在发展规划中无法预测的另一笔费用,她说。

然而,总理改变土地估价方式的计划令财产委员会感到鼓舞。

Cirson 说:我们会要求根据首次置业者 4% 的房产税来设置估值上涨上限。

更多详情可参阅:https://www.smh.com.au/property/news/property-owners-object-to-months-old-valuations-as-prices-plunge-20230227-p5cntl.html

凯文地产学院收费标准,支付方式,报名须知 和 免责声明

图片

2022年悉尼原创地产文章138篇汇总

图片

Kevin 老师介绍,凯文地产学院校长https://kevinproperty.au 地产投资人,太平绅士,NSW持牌买家代理,微信:kevinwang117119 手机0401-481-701 从2003年开始研究澳洲地产,在找deal 和旧房翻新方面积累了丰富的经验,主讲《如何找deal》,《旧房翻新盈利秘笈》等课程。

本文仅代表作者观点,投资有风险,请大家谨慎

1 Cove St Haberfield 持有6年没挣钱

Kevin Wang Kevin Education 2023-03-06 18:27 发表于澳大利亚

图片

34日观摩了一场拍卖,拍卖结束后我思考一个问题,这个看上去中规中矩的house持有了6年为什么没挣钱。

图片

1 Cove Street, Haberfield, NSW 2045

42浴两车位,占地 481m²

首先我们看中介广告

‘Milton’ 是一栋精美的平房,提供宽敞的起居室和娱乐空间,位于一条安静的街道上。

明亮的室内设计结合了联邦特色、雅致的现代装饰和带游泳池的阳光普照花园,提供完美的室内和室外生活

靠近公园、商店和交通的便利位置

平整地块,两面临街面

后院朝北

带围栏的花园,带铺砖露台区和游泳池

传统布局,房间宽敞,细节复古

华丽的挑高天花板,leadlight windows and plantage 百叶窗

四间宽敞的卧室,其中三间提供入墙柜

两间浴室,其中一间带原装古董爪足浴缸

开放式客厅

岛式燃气厨房配有优质不锈钢/钢制器具和石凳

空调,宽敞的屋顶储物空间,车库和车道停车位

步行至 Timbrell 公园和 Bay Run

图片

拍卖现场纪实

拍卖时间在34日上午10点,实际拍卖在1010分开始。

围观40 人,但只有两组买家出价,八次出价就结束了拍卖,出价记录如下

(每组数字后省略了三个零)

240024502500

然后僵持中,没有人继续出价,冷场至少5分钟

期间,中介在买家中周旋

拍卖师继续出场,买家出价如下

25102525 25302540 2550

最后以255万的价格成交

拍卖前中介提供的guide250万,成交价仅比guide多五万。

图片

house的销售记录

2017621日  240万售出

卖家 Rudd Robinson

买家 Roads and Maritime Service

2022119日  内部交易,价格0

房东易主为Transport for NSW

202334日 255

图片

这个house的缺点

位于Corner位置,本来是好事,但另外一条街wolseley st通往Parramatta Rd, 有路过车辆产生噪音

30分钟内至少四架飞机经过

车库非常破

位于古迹保护区

笔者没有看合同,或许还有别的问题

图片

为什么不挣钱

house政府持有了6年,盈利255-240=15万,实际是在亏钱。

原因是什么?笔者总结以下五点,请知情者补充

A 2017年买家 Roads and Maritime Service收购价或许过高

有人认为政府收购会有很多的溢价,因为政府请的是第三方评估机构,其实大概率是当时的市场价,我们可能会看到有少量溢价10-20%收购的案例,更多被报道是低于市场价10-20%被收购的案例。

市场低点售出

居住体验不好,房间虽大,但没有master room

只有两间浴室,且另外一间在靠后院的位置,使用不方便。

卖相有待提升,房间地毯有味道且有污渍,可能是政府持有的原因。

如果是政府持有的房子,请积极主动参加拍卖,或许有机会捡到便宜。

有买家将不挣钱的原因归为政府持有,其实,这是一个可以探讨的问题,也是一个非常复杂的问题。

假设在2017年该house的买家是私人,在2023年3月卖掉,house保持同样的原貌,结果会有很大的不同吗?笔者先不公布自己的结论,让大家有思考的空间。

这是一个假设,也是一个很复杂的问题,要综合考虑很多因素,有兴趣的买家可以深入研究一下。

凯文地产学院收费标准,支付方式,报名须知 和 免责声明

图片

2022年悉尼原创地产文章138篇汇总

图片

Kevin 老师介绍,凯文地产学院校长https://kevinproperty.au 地产投资人,太平绅士,NSW持牌买家代理,微信:kevinwang117119 手机0401-481-701 从2003年开始研究澳洲地产,在找deal 和旧房翻新方面积累了丰富的经验,主讲《如何找deal》,《旧房翻新盈利秘笈》等课程。

本文仅代表作者观点,投资有风险,请大家谨慎

Five Dock 离市区十公里,将有火车站,house中位价268万

Kevin Wang Kevin Education 2023-02-28 08:37 发表于澳大利亚

图片

Five Dock(五码头)是悉尼内西的一个区。五码头位于悉尼中央商务区以西10公里处,属加拿大湾地方政府管辖。

地理位置

五码头位于 Drummoyne 半岛的南端。

更准确地说,五码头位于 Parramatta Road  City West Link 之间,南面是 Hen & Chicken BayParramatta River,北面是 Wareemba  Russell Lea 区,其总面积为 2.45 平方公里。

罗德角位于东部

哈伯菲尔德 (Haberfield) 毗邻东南方的五码头 (Five Dock)

Iron Cove 形成了区东部边界的一小部分。

Ashfield  Croydon 位于 Parramatta 路的另一边,向南。

加拿大湾和康科德的区毗邻五码头的西部边界。

Burwood 就位于克罗伊登(Croydon) 之外的西南部。

从购物中心的中心到悉尼中央商务区的距离约为 7.5 公里,从马丁广场的邮政总局直线测量。通过公路,同样的距离约为 9-10 公里,具体取决于所走的路线。

图片

历史

名字的由来

五码头这个名字最早出现在 1805  3 日的悉尼公报中,其中提到了五码头湾。所有参考资料都一致认为它源自帕拉马塔河沿岸的海湾形状。

根据悉尼港海事服务委员会的一份出版物(第 9 卷第 3 期,1965  9 月),在海湾的 NE 点有五个被比作码头的水蚀凹痕,因此得名五码头。

区内的街道名称

许多五码头街道以市长、市议员和其他与当地政府有关联的人的名字命名,包括查尔斯街、科登大道、亨利海洋大道,Sutton StreetTimbrell DriveUdall AvenueWest Street  William Street

另一系列街道以早期地主、分租者和当地著名商人的名字命名。

一些街道以当地居民的名字命名,包括 Mackaness Close  Langsworth Way

学校

All Hallows’ Parish School

Domremy College

Five Dock Public School

Lucas Gardens School

Rosebank College

商业区

五码头零售和商业中心由一排排商店、银行、餐馆和其他服务组成,沿着大北路在里昂路和皇后路之间的路段延伸约 500 米。它的特点是当地的小型企业比例很高。有许多商店出售意大利食品,这反映了意大利背景居民的数量。

图片

交通

穿过或毗邻五码头的主要区域道路包括帕拉马塔路、里昂路、皇后路、大北路和城市西连线。

五码头公交线路连接到市中心和周边区。

克罗伊登站于 1875 年启用时最初被命名为五码头站。不久之后名称改为克罗伊登。

Five Dick Station

新的地铁站位于North Road, Second av , Waterview st, East st 交汇的地方

是悉尼地铁西线项目的一部分

人口统计

五码头是一个成熟的区,根据 2016 年的人口普查,人口为 9,356 人。

五码头最常见的报告血统是意大利人 18.9%、澳大利亚人 16.1%、英国人 15.8%、爱尔兰人 7.7% 和中国人 5.8%

61.9%的人出生在澳洲。其次最常见的出生国家是意大利 8.2%、英国 2.9%、中国 2.8% 和新西兰2.0%

61.3%的人在家里只说英语。在家中使用的其他语言包括意大利语 13.4%、普通话 3.2%、广东话2.4%、希腊语 2.1% 和西班牙语 1.6%

最常见的宗教回应是天主教徒 43.2% 和无宗教信仰 23.3%

与附近的哈伯菲尔德 (Haberfield) 和莱卡特 (Leichhardt) 一样,五码头也有大量意大利移民。这种意大利的影响体现在几个方面,例如该区餐馆、咖啡馆和熟食店的风格。五码头公立学校自 1981 年以来就开设了意大利语教学计划,并且当地的私立语言学校也开设了意大利语课程。

图片

房屋

五码头的住房主要由独立住宅组成。与悉尼内西区的许多区一样,五码头有一些保存完好的澳大利亚联邦建筑和加州平房风格住宅的例子。然而,这些房屋中有许多已经过翻新,加入现代元素。

五码头的许多住宅都是独立式住宅,通常带有宽敞的花园。根据 2011 年的人口普查,在该区的 3,760 套住宅中,1,676 套为独立住宅,472 套为其他类型的房屋,1,228 套为公寓或公寓。

尽管house占主导地位,但在二战后的发展也有一定比例的公寓建设。

该区house房价中位数位 268.5万澳币, 平均上市天数为50天,平均租金820澳币每周,租金回报率为 1.59%

图片

凯文地产学院收费标准,支付方式,报名须知 和 免责声明

图片

2022年悉尼原创地产文章138篇汇总

图片

Kevin 老师介绍,凯文地产学院校长https://kevinproperty.au 地产投资人,太平绅士,NSW持牌买家代理,微信:kevinwang117119 手机0401-481-701 从2003年开始研究澳洲地产,在找deal 和旧房翻新方面积累了丰富的经验,主讲《如何找deal》,《旧房翻新盈利秘笈》等课程。

本文仅代表作者观点,投资有风险,请大家谨慎

房产投资金句汇总:爱上那笔交易Deal,而不是那个房子

Kevin Wang Kevin Education 2023-02-28 08:37 发表于澳大利亚

图片

第一类金句: 为什么要投资地产?

从某种程度上讲,房产是比货币更好的货币,是一般等价物。

人的一生只做一件事,就是不断增加被动收入。

给你带来钱的东西叫资产,拿走你钱的东西叫负债。

为什么大部分人买股票不赚钱? 因为好的股票在赚钱的时候都卖了。

为什么房子能留住财富,因为房子没有股票那么好卖掉,慢慢就留下来了。

穷人没有亏过钱,但一辈子也没有富起来。

房产投资是唯一比较安全加杠杆的投资,澳洲银行愿意给你五倍的杠杆。

为什么要贷款买房而不用全款?

人生中最重要的是时间,活得久最重要,房产投资亦然。

(房产投资最重要的是时间,持得久最重要,如果你持有超过五十年,还担心不挣钱?)

房地产开发,长期看人口,中期看土地,短期看金融。

未来十年一定有大的通货膨胀,货币空前泛滥,所以,选择大于努力,地产是不可或缺的选择。

图片

未来十年,房价将和收入脱节,工资增长赶不上房价的增长。

澳大利亚地产的优势是第一银行提供杠杆,第二无遗产税,第三法律健全并且透明高。

金钱会追捧保值增值的资产。

钱的最主要的功能是带来你需要的资源。

 

要投资收入增长赶不上房价增长的城市,这样的城市有以下五个特点

第一,特大城市

第二,不断有人口进入(移民不断)

第三,国际性大都市

第四,土地供给有限

第五,房价收入比大于15

 

房地产的投资属性

第一,价格波动不快(和股市比)

第二,收益分为两块,资本增值和租金收入

第三,善用规划提高价值

第四,取得贷款融资

第五,Location很重要

第六,对抗通货膨胀。

图片

第二类金句: 具体投资策略

提醒房东们, 要尊重澳洲房产的投资属性,要选精品, 并中长期持有。

娶自己养得活的老婆,买自己供得起的房子。

爱上那笔交易,而不是那个房子。

什么是买房的最佳时机? 就是你买得起的时候!

 

澳洲政府为什么提供补助?

因为补贴会给人占便宜的感觉, 至于是否真的占到便宜, 不一定

钱是赚出来的,不是省出来的。如果有钱不去投资,是对钱的亵渎。

 

卖方中介是为卖方服务的,不是为你(买主)服务的,因为你并没有为他的服务花钱,卖方中介是向卖主收费的。

没有非买不可的房子,不要以是否买到论英雄。

(要适当冷静,特别是在拍卖时)

 

什么是最佳交易? 就是低买高卖。

第一, 以低于市场的价格购买,低得越多越好。

第二, 考虑到十年后谁会花高价买这套房。

 

当你觉得一套房子非买不可时,请列出它有什么不好的地方?有没有致命的或无法改变的缺陷。

 

买自住房更感性一些,所以,更愿意多付。在拍卖时,自住的买家会出最好的价格,投资的买家会更理性。

 

在澳洲投资一套房产时,要做好至少持有十年的准备。

(在实际持有过程中可以观察行情变化,随机做出调整,但在买入时不要只做短线打算)

 

绝大部分购房者的困惑:已有的预算买不到理想中的房子。

任何一个自住房,最后都会变成投资房。

 

在同等条件下(同区域,同价格),买建筑面积最大,房间最多的房子,大致不会错!

房产投资最大的错误是:在买得起的时候还在观望,这个错误远远大于在买得起的时候买了一个平凡的房子(盈利平平的房子)。

 

世上哪有十全十美的房子, 就像你找对象一样。

 

再好的市场, 也有不好的交易bad deal;

再差的市场, 也有好交易good deal。

 

别人贪婪时,我谨慎;

别人谨慎时, 我贪婪。

增值好房子的特点

第一,好区,供给少。

第二,好的户型和朝向(宜居)

第三,富有策略的翻新增值。

公寓的特点是:

近火车站,或者近商业区,或者两者都近。

图片

第三类金句: 旧屋翻新

买老房子要注意:

越老的房子,不可控的因素越多,就像一个人的年龄一样。

翻新盈利的案例通常是:

在最好的街区买最差的房子,做最能增值的翻新。

适合翻新地区的特点:老房多,房价高。

为什么通过翻新重建能很快升值?有以下几个原因:

做翻新花在找项目的时间往往多过翻新的时间,要做财务分析,并核算好盈利空间。

凯文地产学院收费标准,支付方式,报名须知 和 免责声明

图片

2022年悉尼原创地产文章138篇汇总

图片

Kevin 老师介绍,凯文地产学院校长https://kevinproperty.au 地产投资人,太平绅士,NSW持牌买家代理,微信:kevinwang117119 手机0401-481-701 从2003年开始研究澳洲地产,在找deal 和旧房翻新方面积累了丰富的经验,主讲《如何找deal》,《旧房翻新盈利秘笈》等课程。

本文仅代表作者观点,投资有风险,请大家谨慎

投资回顾:五万澳币在悉尼买house,首次置业的故事

Kevin Wang Kevin Education 2023-02-28 08:37 发表于澳大利亚

图片

所谓首次置业,就是第一次在澳洲买房。

官方统计说,首次置业对绝大部分家庭来说是非常困难的一件事情,我想起了自己首次置业的故事。

时间并不遥远,但已经成为了故事,从故事之中寻找自己的足迹。

时间:2005年

地点:悉尼西区Auburn

首期:五万澳币

前房主售房原因:去养老院

目前估值:110万澳币

图片

我为首次置业找房超过一年,也就是从2004年开始,2004年初悉尼的房价依然坚挺,在Auburn 几乎看不到四十万以下的house,等到2005年,慢慢出现了四十万以下的house。

在看中kihilla rd 这个房子之前(以下简称K房),我先后看过十来个house,但不是被我否了,就是被太太否了,或者被我的辅导老师给否了,很沮丧。

我从投资第一个house开始,就没有买过任何apartment, 甚至没有看过任何apartment,这是我辅导老师的功劳。

换句话说,从2005年第一次买房开始,我没有在研究参观apartment上耽误过任何时间和精力。

图片

在买K房之前,我非常清楚自己首次置业的购房目标。

售价:三十万出头,不能超过三十五万(首次置业,资金有限)

土地面积:尽量大

房间:尽量多

火车站:越近越好。

先后走访了当地的几家中介,告知对方我的目标,每天看domain和realestate,争取发现目标,第一时间看房。

Kihilla 的这个房子是还没有上市,中介就通知我们去看,思考了一天之后就签了合同。

多年后,发现一个规律,被我买下的house,也就看过一到两遍,凡是看过三遍以上的,都没有买着。

这个规律不一定有普适性,但可以反向思考,之所以看多遍肯定是有不放心的地方,不放心的地方多看一遍就放心了吗?可能更不放心了!

K房的几个特点

土地面积: 385平米。

房间:四房,有阁楼和车库

售价33万

步行火车站7分钟

2005年中介预估租金 400澳币每周

我当时算house值不值得买的简单方法是,三十万的房子每周租300澳币以上,四十万的房子租400澳币以上,这个house的租金回报满足我的租金核算公式。

这个房子看上去比同类的房子便宜,所以,果断签字,并付10%的定金进入冷静期。

初生牛犊不怕虎,因为是首次买房,所以,什么也不懂,什么都不怕。不知不觉中,我踩了一个坑,差点出不来。

因为是第一次买房,我对房屋的title一无所知,律师也没有清楚地告诉我。

在申请贷款的过程中,银行告知这个房子是old title,需要查以前的成交记录,之所以要查清楚以前的成交记录,是担心任何第三方对本物业拥有权力,排除这一点后,银行贷款才能批!

知道银行的要求后,我吓得几晚睡不着觉,头皮长出无数个疙瘩。如果无法取得贷款,面临的出路只有两个

第一,  损失10%,就是三万三澳币。

第二,  全额付33万澳币,我当时没有这笔巨款。

没有别的办法,我的办法也只有两个

第一,  每隔一两天去律师那儿催进度,软磨硬泡。

第二,  亲自去土地局,查这个房子的成交记录。

功夫不负有心人,经过一个多星期的辛苦工作,成交记录查清了,贷款也就批了。

图片

买这个house的三点经验教训:

第一,  找律师一定要找专门做房产过户的律师,如果找的律师什么业务都接,商法,民法,刑法什么案子都接,很可能在房产过户方面经验不够。

在澳洲购房,律师能帮你干什么?哪些不是律师的职责?

第二,  如果有经验丰富的地产投资教练(老师)带领,会少走很多弯路。

买房是一个不断颠覆认知的过程,我的存在就是帮你颠覆认知

第三,  清楚地告知目标区域的房产中介你的购买目标,并告知贷款已经批好,这样你有机会在第一时间获得未上市房源和最新上市房源。

这个house一直有正的现金流,也就是说,我十八年之前只花了五万澳币,将一个33万澳币的house变成了110万澳币,获得了80万澳币的增值。不能说这笔交易多成功,但可以说,在资金有限的情况下, 也可以投资地产, 也可以取得不错的资金回报!

当时首次置业可以买旧house,政府补助是7000澳币, 7000澳币虽然不多,但确实能给首次置业者助力。

有人说,这是2005年的故事, 2023年还能找到类似的交易吗?

我的答案是,能! 好交易永远在,缺的是发现好交易的人!

也有买家问,怎么不买一个贵一点好一点的house,实话告知,当时那就是我全部家底。

这个house帮我实现了零的突破,带我进入了地产投资之门,为后面的连续投资做了铺垫,那是后话。

请点击标题下的蓝字 Kevin Education 持续关注。

凯文地产学院收费标准,支付方式,报名须知 和 免责声明

图片

2022年悉尼原创地产文章138篇汇总

图片

Kevin 老师介绍,凯文地产学院校长https://kevinproperty.au 地产投资人,太平绅士,NSW持牌买家代理,微信:kevinwang117119 手机0401-481-701 从2003年开始研究澳洲地产,在找deal 和旧房翻新方面积累了丰富的经验,主讲《如何找deal》,《旧房翻新盈利秘笈》等课程。

本文仅代表作者观点,投资有风险,请大家谨慎

Haberfield某house拍卖指导价比土地价值低40万,是漏还是坑?

Kevin Education 2023-02-28 08:37 发表于澳大利亚

图片

位于内西的haberfield 一个house的拍卖信息引起了笔者的注意

Haberfield 距离悉尼CBD 6.5公里的花园区,大宅大地房价高

135 Bland Street Haberfield NSW 2045

拍卖指导价150

41浴两车位,

土地面积537平,土地价值190

图片

首先看中介广告(很少看到中介广告夸大缺点的,这个就是)

绝对具有梦想潜在真正机会的空白画布!

带上您的工具箱,builder,将这座破旧的四居室恢复为以前的荣耀。

不可否认,这种曾经经典的house需要大量工作。

房屋的某些部分甚至有限限制,原始车库可能会在一个风雨天被吹垮!

房子可能不处于最佳状态,但是骨头就在这里。

如果您准备将手弄脏,那么这种未打磨的宝石将有机会再次发光。

土地面积537平方米

阳光明媚的后院,有东面和延伸空间(STCA

坚固的双砖制造,具有原始功能

传统的高天花板,木地板和复古壁炉

休息室和餐饮,多功能区域,不可用的厨房

最多四间卧室,主浴室加上洗衣房和额外的WC

漫长的侧驱动器为几辆汽车提供路外停车

800mHaberfield的商店,咖啡馆,糕点店和餐馆

在五分钟内步行到哈伯菲尔德公立学校

图片

缺点

位于古迹保护区

需要翻新

噪音(和主路隔一排房子)

easement

图片

为什么关注这个house

拍卖指导价150万,土地价值190万,地价比指导价多40

隔壁邻居137号正在出售,售价235

这个house在本周六34日上午1030拍卖,关注一下。

图片

说明

笔者列出这个房源并不是说该房源就是好deal,因为没有成交,无法评判。

不同的买家关注的加分项和扣分项不同。

这个house的缺点非常明显,优点也非常明显,那就是有可能价格会很低。

图片

凯文地产学院收费标准,支付方式,报名须知 和 免责声明

图片

2022年悉尼原创地产文章138篇汇总

图片

Kevin 老师介绍,凯文地产学院校长https://kevinproperty.au 地产投资人,太平绅士,NSW持牌买家代理,微信:kevinwang117119 手机0401-481-701 从2003年开始研究澳洲地产,在找deal 和旧房翻新方面积累了丰富的经验,主讲《如何找deal》,《旧房翻新盈利秘笈》等课程。

本文仅代表作者观点,投资有风险,请大家谨慎

澳洲老司机对首次置业新手的提醒:买第一套房该注意什么?

Kevin Wang Kevin Education 2023-02-21 21:38 发表于澳大利亚

图片

我对首次置业者有一个大大的提醒:

首置买的房,迟早会变成投资房,喜欢那笔交易,而不是那个房子。

所以,不要让首置的房,满足你的所有愿望,如果你只打算住一年半载,或者根本不入住,满足能增值就好。

笔者首次置业的房,还没有住满一年就搬走了!

在此,笔者对首次置业买家有两个重要提醒:

第一, 钱够了就该入市

拖延症会丧失机会。我首次置业时,有一个朋友的资金比我宽裕,等我买完两套房,她的首次置业房还没有买到,白白浪费了几年的增值机会。

第二,找一个好的导师。

找买了五套房以上的房主作为老师,通常情况是,买得越多经验越丰富。

市面上专家很多,但很多人是理论多,行动少。笔者相信实践出真知,找有结果的人来指导你,一定会少走很多弯路。

一个残酷的事实是,你爹妈的意见很可能对你没有什么帮助,隔壁老王和邻居二大妈的意见完全可以忽略。

图片

因为首次置业者没有买房经验,也不知道到哪里找导师,耽误了很多时间。

也有首次置业者跟着感觉走,本着撞运气的心态,这样大概率会买错房子。

原创:我们已经很小心,但为什么买房还是会出错?

笔者投资房产近二十年,越来越发觉投资房产是一个非常理性的活动,感性的成分在购房决策中占比越少越好。

如果你身边无法找到导师,笔者愿意和你聊聊。

首次置业者的购房困惑主要有以下三点

1,钱不够

2,缺乏基本房产投资知识

3,诉求点太多

关于第三点,很多投资者纠结点是自住和投资不能两全。

对此,目前有一个非常流行的做法,在自己能供得起,并有增值潜力的地区买首次置业房产,在自己生活工作方便的地方租房。

这种做法将两个诉求点分开了,既解决了买得起的问题,又解决了生活质量的问题。

凯文地产学院收费标准,支付方式,报名须知 和 免责声明

图片

2022年悉尼原创地产文章138篇汇总

图片

Kevin 老师介绍,凯文地产学院校长https://kevinproperty.au 地产投资人,太平绅士,NSW持牌买家代理,微信:kevinwang117119 手机0401-481-701 从2003年开始研究澳洲地产,在找deal 和旧房翻新方面积累了丰富的经验,主讲《如何找deal》,《旧房翻新盈利秘笈》等课程。

本文仅代表作者观点,投资有风险,请大家谨慎!